Услуги

Архитектурное обследование

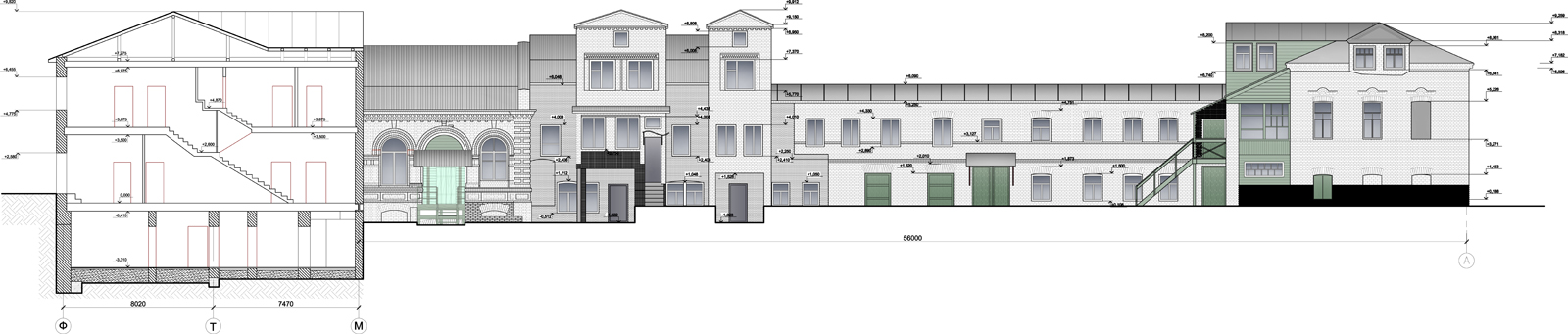
Архитектурное обследование объекта культурного наследия «Усадьба А.И.Гребежева», г.Самара, ул.Чапаевская,112

  • Наименование объекта: Архитектурное обследование объекта культурного наследия «Усадьба А.И.Гребежева», г.Самара, ул.Чапаевская,112
  • Типология: Городская купеческая усадьба конца XIX в., приспособленная под жильё и Центр социального обслуживания населения.
  • Проектная организация: ООО ТПФ «Среда-2»
  • Заказчик: Управление гражданской защиты Администрации городского округа Самара
  • Общая площадь объекта: 2997,7 м2
  • Строительный объем: 11842,79м3
  • Количество этажей: 2


.