Проекты

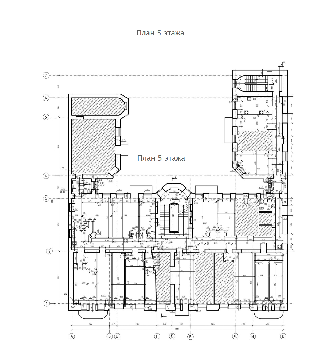
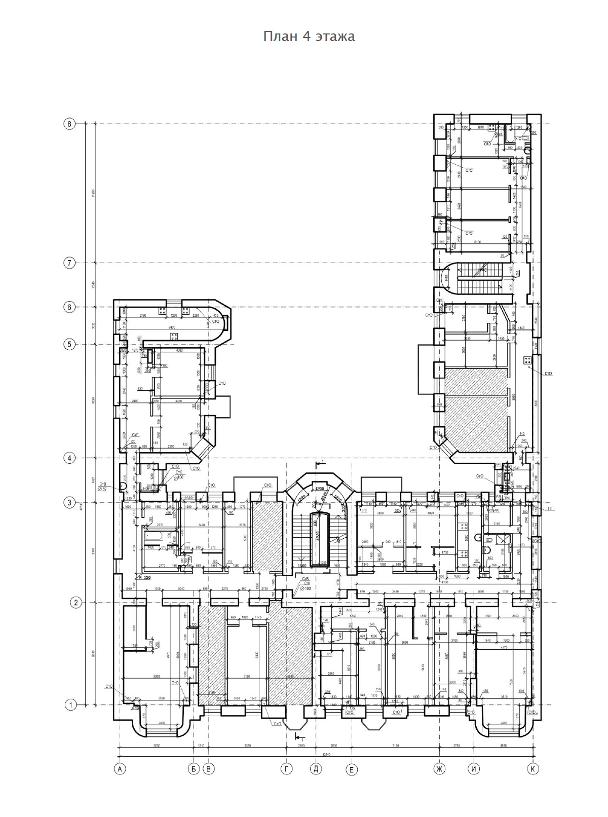
Предварительные работы по объекту культурного наследия регионального значения "Дом Сурошникова". Г.Самара, л.Фрунзе, 87-89

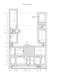
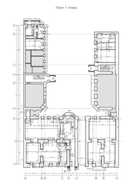
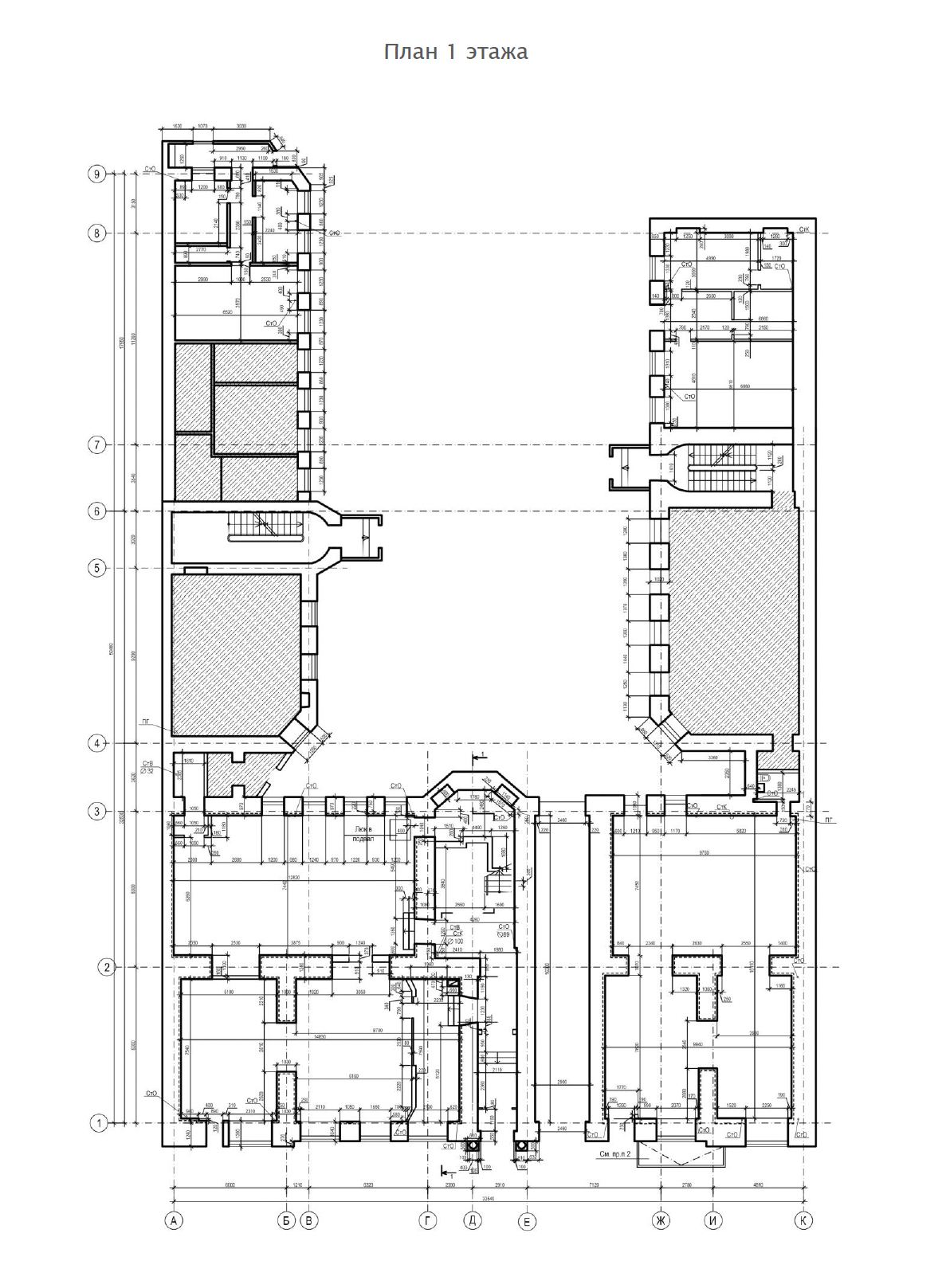
  • Объект: Предварительные работы по объекту культурного наследия регионального значения «Дом Сурошникова»
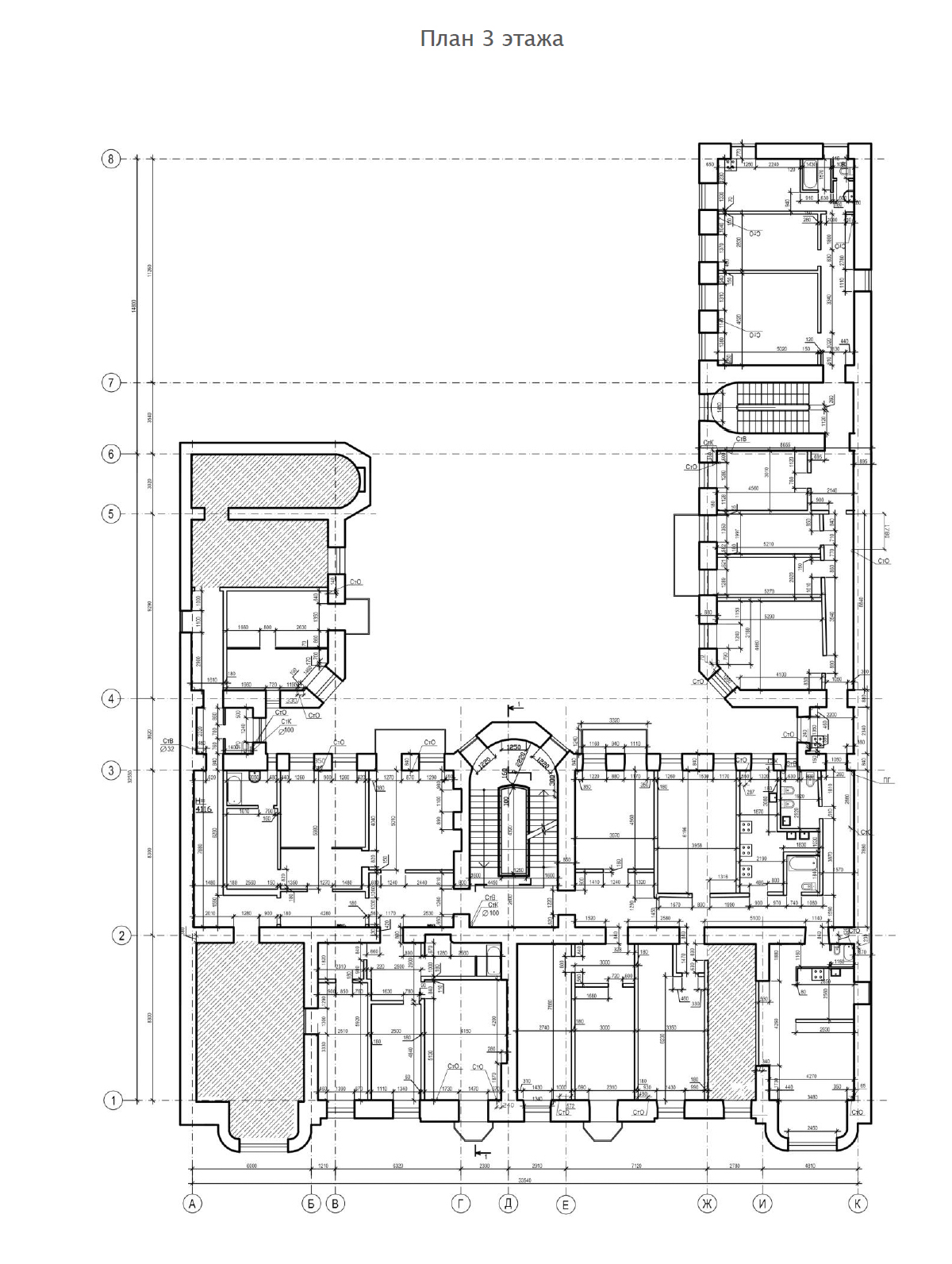
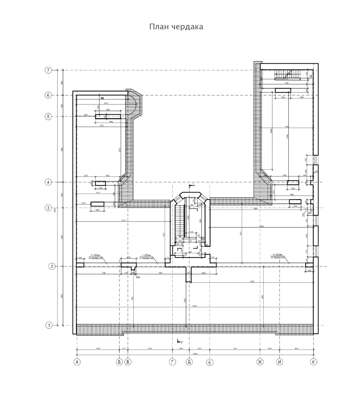
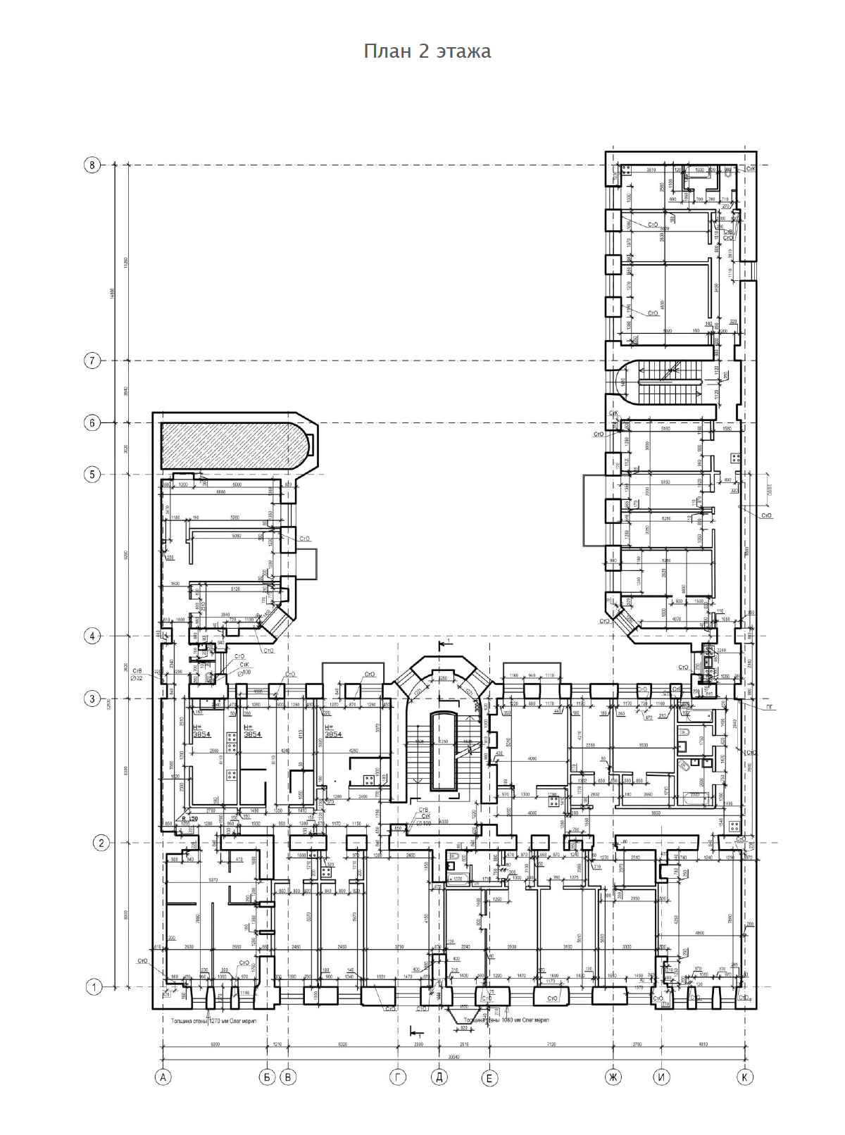
  • Адрес: г. Самара, ул. Фрунзе, д. 87-89 литеры А, А1, А2, А3, Б
  • Типология: Городской доходный дом начала ХХ века (построен около 1910г). В настоящее время сохранилось функциональное распределение в здании: на первом этаже – помещения магазинов, со 2-го по 5-ый – жилые помещения.
  • Стиль: Модерн
  • Проектная организация: ООО ТПФ «Среда-2»
  • Заказчик: ООО «Ротонда», г. Санкт-Петербург
  • Общая площадь объекта: 8369 м2
  • Строительный объём: 29887 м3, в т. ч. подземной части – 4912 м3 и наземной части - 24975 м3.
  • Количество этажей: этажность переменная с 1 до 5 этажей


.